Spoiler : Minimalisme, retour aux sources, écoresponsabilité, durabilité, autonomie énergétique : bienvenue au pays des Tiny House, dont les adaptes ont franchi le pas en laissant derrière eux appartements et maisons traditionnelles pour de petits espaces nichés dans des coins de nature. Ce mode de vie et d'aménagement de l'espace n'est pas sans rappeler celui des camping-cars, vans et fourgons aménagés, en quête également de nature et d'une vie plus calme, en phase avec leur environnement. Retour sur une tendance à la hausse qui nécessite un aménagement intérieur murement réfléchi, malin et astucieux !
Une Tiny House, en français mini-maison ou petite maison, désigne une habitation mobile à surface réduite placée généralement dans un écrin de nature. Vous savez, ce sont les petites maisons en ossature bois tout en longueur et sur roues (posées sur la structure d'une remorque) que l'on aperçoit parfois au milieu des arbres dans des espaces verdoyants. La Tiny House, à mi-chemin entre la cabane, la maison de poupée et la roulotte, répond aux aspirations écolo et économes d'une population en quête de simplicité.


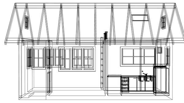
En moyenne, la surface d'une Tiny House est de 25 m2, si l'on compte la mezzanine du premier étage dans laquelle se niche la plupart du temps la chambre à coucher. Au premier abord, la Tiny house ressemble à une cabane dans les bois. Mais ne vous trompez pas, les adeptes de la Tiny House n'ont pas renoncé au confort, bien au contraire !
Tout l'art revient à aménager confortablement plusieurs espaces de vie dans les limites imposées par le format de la remorque. La largeur maximale est de 2,55 mètres. Cette mesure inclut l'isolation. La hauteur maximale s'élève à 4 mètres (histoire de passer sous les ponts lors des déplacements ou de la livraison de la Tiny House) et la longueur de 12 mètres. Le poids total ne devant pas dépasser 3,5 tonnes.
Vivre dans un espace restreint, c'est réduire son empreinte écologique. Habitat léger et mobile, l'impact sur l'environnement d'une Tiny House est bien moindre que celui des habitations traditionnelles. Le soin apporté au choix des matériaux durables (bois massif) ainsi que la volonté d'utiliser moins d'énergie (poêle à bois) et de ressources naturelles (toilettes sèches) en font un habitat écologique à consommation énergétique à la fois raisonnée et limitée.
Devenir propriétaire d'une Tiny House permet de réduire les années d'emprunt (en comparaison d'un achat de maison ou d'appartement) et de faciliter la vie quotidienne. Moins de frais et d'entretien pour un peu plus de liberté. Les prix varient vraiment du simple au double voire au triple selon le modèle et les équipements choisis. La fourchette, ultra large, va de 20 000 à 80 000 euros pour les plus grandes, fabriquées clés en main par un professionnel.
Pourquoi utiliser une Tiny House en mode sédentaire si cette habitation repose sur une remorque ? Pour profiter du terrain, d'un jardin, et des joies extérieures en mode fixe. Il est possible d'ajouter une terrasse en bois et des plantes décoratives afin de créer un lieu extérieur convivial. L'occasion d'y poser du mobilier d'extérieur et d'inviter des proches.


Pousser les murs dans une Tiny House, c'est impossible. Alors comment gagner des centimètres, voir des millimètres pour faire rentrer un salon, une chambre et une salle de bain dans 20 m2 ? C'est à ce moment-là que le design et l'agencement intérieur interviennent. Car une Tiny House est un miracle d'agencement, d'organisation intérieure et d'astuces pour un rendu cosy, charmant, et convivial.
La hauteur conséquente de ce type d'habitation représente un mega plus pour l'aménagement et le rangement intérieur :
L'agencement intérieur d'une Tiny House s'effectue en amont. Les meubles traditionnels ne fonctionnent pas dans une tiny, ce qui vous invite à réfléchir et à prendre des décisions dès l'étape de la conception. Et vous laisse le temps de faire le tri pour savoir ce que vous souhaitez garder ! Dans tous les cas, et en comparaison avec une maison traditionnelle de plain-pied, l'optimisation de l'espace est radicalement différente, compte tenu des limites de ce type d'habitat.
La modularité fait partie intégrante de l'aventure Tiny House. Par exemple, si vous souhaitez intégrer une table de cuisine, pensez à une solution rabattable plutôt que classique. Pareil si vous voulez une tablette de bureau. Réfléchissez à tout ce qui pourrait se rabattre ou s'encastrer dans un espace. C'est le moment de penser Tetris !
Une Tiny House comprend plusieurs espaces, ou pièces de vie, même s'ils ne sont pas séparés par des murs ni des portes. D'ailleurs, une mini maison ne compte généralement que deux portes : la porte d'entrée et la porte coulissante de la salle de bain.
En matière d'espaces restreints, Just4Camper en connaît un rayon ! Petite sélection d'accessoires de cuisine astucieux :
La marque Purvario by Dörr est également experte en solutions astucieuses pour espaces réduits.

La salle de bain d'une Tiny House est également placée sous le signe de l'organisation. Porte-savons, étagères, crochets et supports crochets pour serviettes facilitent la vie et le rangement. Ces accessoires propres aux petits espaces apparaissent essentiels lorsque la place est comptée.
Pensez également aux corbeilles à suspendre sous les étagères ainsi qu'aux filets de rangement qui peuvent accueillir vos crèmes, brosses à cheveux et à dents.
Pour les toilettes, la majorité des Tiny House fonctionnent avec des toilettes sèches à compostage.

L'étape la plus sympa de l'aménagement d'une mini maison. La décoration intérieure doit tenir compte des matériaux de construction utilisés, comme le bois massif et l'aluminium. Optez pour le less is more, autrement dit une déco minimaliste, naturelle, qui fait la part belle au bois et aux plantes. Des pointes de couleur peuvent également rehausser le tout par légères touches. Gardez à l'esprit que le blanc et les couleurs claires agrandissent la perception de l'espace.
On entend souvent que la Tiny House ressemble à ses propriétaires car le sur-mesure représente une partie conséquente de la conception et de l'aménagement. Une mini maison pensée pour une personne ou un couple précis. Just4Camper est là pour les accompagner avec des solutions malines pour espaces restreints.